Prodej rodinného domu 51 m² s pozemkem 108 m²
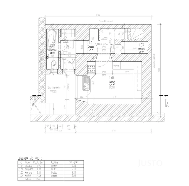
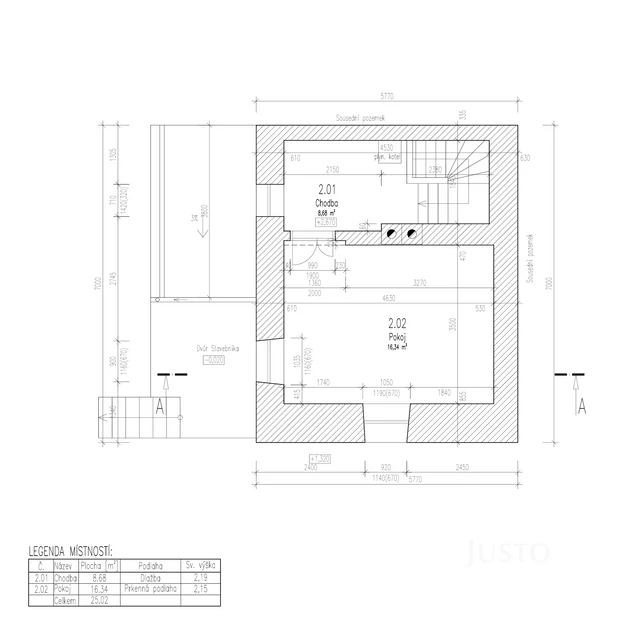
V zastoupení majitele vám představujeme prodej rodinného domu v obci Hostouň. Stavba domu stojí na pozemku o celkové ploše 108 m² a nabízí užitnou plochu cca 51 m². Základní informace: - dispozice 1+1 - přístavba a rekonstrukce v roce 2008 (rozvody vody, elektřiny a topení) - dřevěná eurookna - napojení na vodu z řádu a kanalizaci - zpracované a vyřízené podklady pro rekonstrukci – přístavbu obytného podkroví Lokalita a občanská vybavenost: - základní a mateřská škola, obchody a běžné služby přímo v obci - vlakové spojení – zastávka Jeneč, vhodné pro přestup na metro A (Nádraží Veleslavín) - autobusové spojení v rámci PID - Praha cca 10 minut autem, Kladno cca 13 minut autem - cyklostezky a možnosti aktivního vyžití v okolí Veškeré fotografie, půdorysy a další informace najdete ve sdílené složce. Odkaz vám dorazí během několika minut po odeslání poptávky. Prosím, zkontrolujte si také složku spam nebo nevyžádaná pošta, kam by email mohl zapadnout.
- cena
- 3 790 000 Kč
- adresa
- Na Pohoří, Hostouň
- ID nabídky
- J11199
- Stav nabídky
- volné
- Budova
- Smíšená
- Stav objektu
- Před rekonstrukcí
- Plocha užitná
- 51 m²
- Počet pokojů
- 2 pokoje
- Vybavení
- Částečně
- Typ domu
- Patrový
- Poloha objektu
- Samostatný
- Umístění objektu
- Centrum obce
- Vlastnictví
- Osobní
- Plocha pozemku
- 108 m²
- Sklep
- Ano
- Plocha sklepu
- 5 m²
- Počet podlaží budovy
- 2
- Počet podlaží podzemní
- 1
- Topení
- Lokální plynové
- Topné těleso
- Radiátory
- Zdroj topení
- Plynový kotel
- Zdroj teplé vody
- Plynový kotel
- Doprava
- Vlak, Autobus
- Elektřina
- 230V
- Voda
- Vodovod
- Odpad
- Veřejná kanalizace
- Plyn
- Plynovod
- Komunikace
- Asfaltová
























